Продажа помещения свободного назначения

Московская область, деревня Сапроново,

135 000 000 ₽

487 066 ₽ за м²

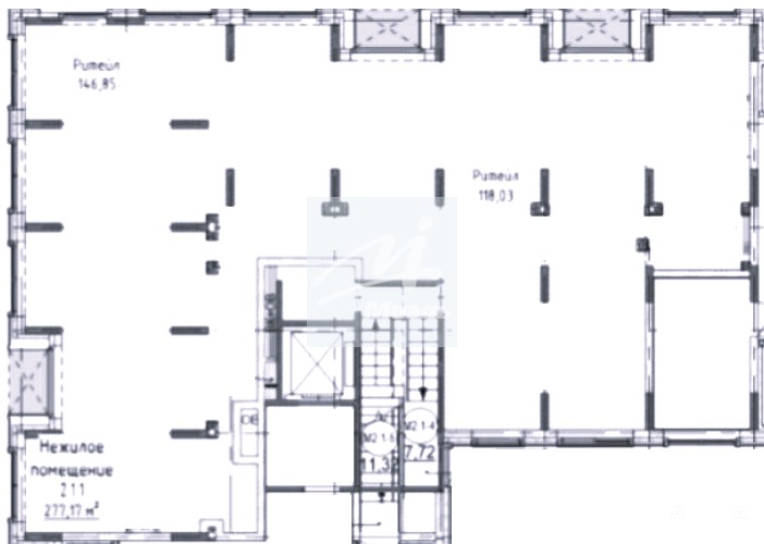
277 м²
Площадь
1/16
Этаж

Поделиться

Добавить в избранное

Готовый арендный бизнес с супермаркетом «Дикси»277, 17 м² на первой линии, ЖК «Первый квартал», д. Сапроново, Ленинский городской округВ продаже коммерческое помещение с якорным арендатором — федеральной сетью «Дикси». Угловое расположение на въезде в ЖК, долгосрочный договор, растущий доход с первого года.Локация.Московская область, Ленинский городской округ, деревня Сапроново, ЖК «Первый квартал» (6-й микрорайон г. Видное). Помещение расположено на первой линии, угол на въезде в жилой комплекс — максимальная обзорность и доступность.Транспортная доступность.Рядом конечная остановка общественного транспорта. Доступны три станции метро: «Домодедовская», «Аннино», «Царицыно». В перспективе — новая станция «Лебедянская». До ж/д станции «Расторгуево» (25 минут до Павелецкого вокзала).О ЖК «Первый квартал».Девелопер — компания «Брусника» (основана в 2004 году, надежный застройщик с репутацией качественных проектов).Основное об объекте.Общая площадь: 277, 17 м²Стоимость: 135 000 000 ₽Окупаемость: 10 летЭлектричество: 40 кВтВысота потолков по проекту: 4, 02 мВвод дома в эксплуатацию: 4 квартал 2027 годаАрендатор и доход.Арендатор: супермаркет «Дикси» (федеральная сеть)Договор аренды: заключен на 10 летМАП 1-й год: 969 500 ₽МАП 2-й год: 1 108 000 ₽РТО: 5% с первого месяцаИндексация: 5% безусловная ежегодно с 3-го годаЧто получает инвестор.Якорный федеральный арендатор с 10-летним договоромДоход с первого года (969, 5 тыс. ₽) и рост на второй год (+138, 5 тыс. ₽/мес)РТО 5% с первого месяцаУгловое помещение на въезде в ЖК — лучшая видимость и трафикНадежный девелопер (Брусника) и растущий районВыход в точку на этапе первой волны заселения крупного ЖКВажно:Объект продаётся как готовый арендный бизнес с договором. Все условия фиксированы.Обращайтесь, обсудим детали.

Дата обновления: 9 апреля 2026